Un an après avoir emménagé dans leur appartement de 120m² au sein d’un mas familial à Pouzols, ce jeune couple avec un enfant en bas âge – et un second en route – a fait appel à LMAID.
Leur demande était claire : mettre cet appartement sur deux niveaux à leur goût, créer les rangements qui leur manquaient au quotidien, et améliorer le confort thermique du logement.
Un projet concret, ancré dans les besoins réels d’une famille qui s’agrandit.
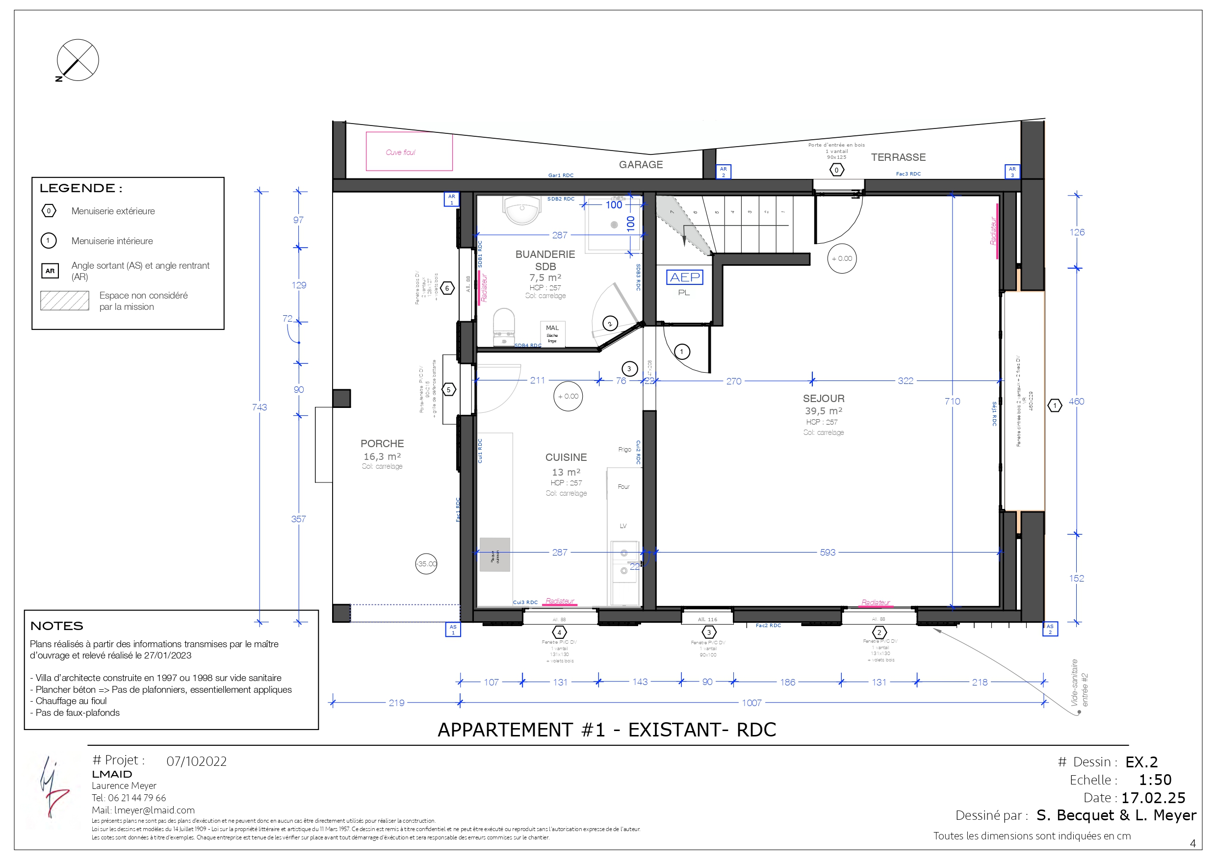
L'appartement avant les travaux
L’appartement disposait de beaux atouts : de bons volumes, une architecture typique des mas héraultais avec ses poutres apparentes, et une grande baie vitrée en plein cintre qui apporte beaucoup de lumière au séjour.
Le séjour révélait néanmoins un manque évident de rangements. La salle de bain était fonctionnelle mais sans caractère particulier. La chambre parentale aurait gagné à disposer de sa propre salle d’eau. Enfin, les performances énergétiques du logement (sujet important pour les propriétaires) avaient besoin d’être améliorées, notamment le confort d’été,
La mission de LMAID
LMAID a accompagné ce projet avec une mission complète d’architecture d’intérieur, réalisée en co-traitance avec l’agence SOΦ pour l’étude d’avant-projet.
Cette mission a inclus :
- La conception et le suivi de réalisation de l’aménagement intérieur
- L’accompagnement dans la rénovation énergétique de l’appartement
- La réalisation du dossier d’autorisation d’urbanisme pour l’isolation par l’extérieur
- Les prestations de maîtrise d’œuvre
L’étude d’avant-projet a permis d’affiner les besoins du foyer et de hiérarchiser les priorités. Le programme final s’est concentré sur l’amélioration du confort thermique, l’intégration d’équipements durables et faciles d’entretien, et l’optimisation des espaces existants.
La rénovation énergétique, première étape du projet
Avant de travailler sur l’aménagement intérieur, LMAID a recommandé la réalisation d’un audit énergétique complet. Cette étude a permis d’identifier les zones de déperdition thermique, de proposer plusieurs scénarios de travaux et de recenser les aides financières mobilisables.
Le choix s’est porté sur une isolation thermique par l’extérieur, accompagnée de la rénovation des enduits de façade. Cette solution a permis d’améliorer durablement le confort thermique tout en préservant les volumes intérieurs et en valorisant l’aspect extérieur du bâtiment.
Les choix d'aménagement
Pour cette rénovation, LMAID et SOΦ ont opté pour un style contemporain avec des matériaux faciles d’entretien – un critère important pour une famille avec de jeunes enfants.
L’ambiance souhaitée par les propriétaires : conviviale, colorée et inspirée de la nature.
Le réagencement a porté sur plusieurs points : ouverture élargie entre la cuisine et le séjour pour fluidifier la circulation, création d’une vraie entrée avec rangements adaptés à une famille de quatre personnes, aménagement d’un WC indépendant à la place de l’ancienne buanderie, et création d’une salle d’eau attenante à la chambre parentale.
Une véritable entrée familiale
L’ancienne salle d’eau/buanderie a été repensée pour intégrer :
- un WC indépendant,
- une zone buanderie optimisée,
- des rangements sur mesure adaptés à une famille de quatre personnes.
Chaque mètre carré a été exploité avec précision.
La chambre parentale
À l’étage, la chambre a été réorganisée avec une cloison qui sépare le coin dressing de l’espace nuit. La salle d’eau attenante, compacte mais fonctionnelle, répond à la demande des propriétaires de disposer d’un point d’eau indépendant de la salle de bain principale. Elle est compacte et fonctionnelle.
La salle de bain des enfants
L’ancienne salle de bain a été repensée pour devenir celle des enfants.
L’association d’une faïence jaune d’inspiration zellige et d’un carrelage imitation terrazzo crée une atmosphère lumineuse et colorée, en accord avec les souhaits des propriétaires.
Un vélux a été créé pour apporter de la lumière naturelle.
Les miroirs, sur le mur et l’armoire de lavabo, renforcent cette luminosité. Le meuble vasque en bois et la robinetterie moderne complètent l’ensemble.
La bibliothèque sur mesure : signature du projet
Palier le manque de rangements était l’une des principales demandes des propriétaires. La bibliothèque dessinée par LMAID y répond en occupant tout un mur du séjour. Réalisée en BA13, elle s’intègre à l’architecture de la pièce.
Ses alcôves aux formes arrondies accueillent livres et objets. La mise en couleur souligne les volumes. Au-delà des étagères, la bibliothèque intègre des coffres et des niches pour des paniers de rangement. Ces coffres servent aussi d’assises.
D’un côté, l’espace télévision avec la collection de consoles de jeux vidéo des propriétaires ; de l’autre, un coin lecture avec son alcôve dédiée.
Un mur graphique et mis en lumière
En contrepoint de la bibliothèque, le mur de la baie vitrée a été habillé de panneaux décoratifs ajourés rétro-éclairés. Le motif, composé de petits losanges disposés de manière aléatoire, crée un jeu de lumière délicat. Selon le regard, il évoque une dentelle ou un ciel étoilé. Il apporte ainsi une touche de poésie et renforce l’atmosphère chaleureuse du séjour.
Un projet cohérent et durable
L’appartement répond désormais aux attentes de ses propriétaires : des rangements en quantité suffisante pour une famille de quatre, un confort thermique amélioré grâce à l’isolation extérieure, et une ambiance qui leur ressemble – colorée, contemporaine et pratique au quotidien.
L’appartement n’a pas été transformé radicalement. Il a été ajusté, optimisé et renforcé au travers d’une réflexion globale visant à :
- Améliorer la performance énergétique,
- Structurer les usages,
- Concevoir des rangements intégrés,
- Moderniser un intérieur selon les souhaits du client.
F.A.Q
Oui, une déclaration préalable ou un permis peut être requis. LMAID accompagne ces démarches.
LMAID accompagne ses clients dans une approche globale incluant l’audit énergétique et la coordination et le suivi des travaux d’isolation.
Vous envisagez une rénovation énergétique et un aménagement intérieur dans la vallée du Cœur d’Hérault, à Clermont-l’Hérault, Gignac ou Montpellier ?
La rénovation énergétique constitue aujourd’hui un levier essentiel dans tout projet d’aménagement intérieur dans l’Hérault.
LMAID accompagne chaque projet avec une approche globale, technique et sensible.
Contactez LMAID pour échanger sur votre projet.

























