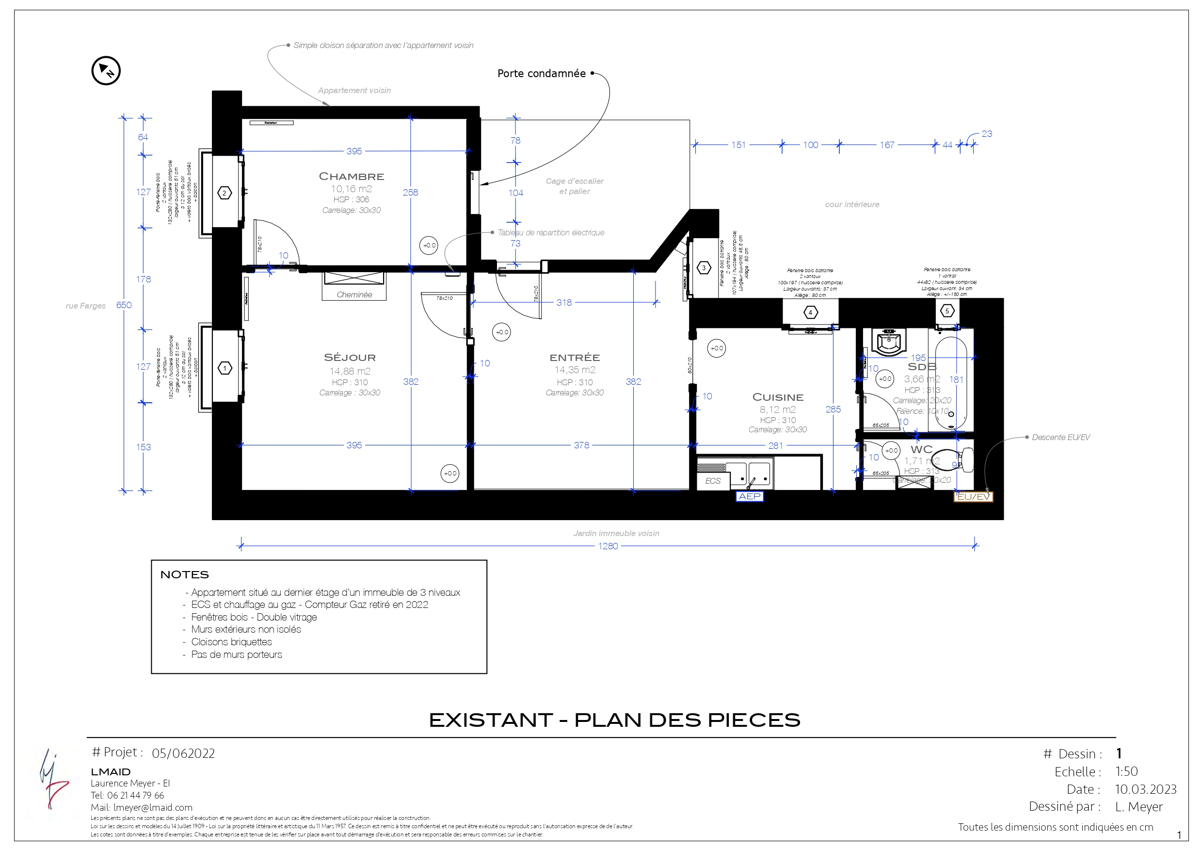
Situé au dernier étage d’un petit immeuble de la fin du XIXe siècle, cet appartement de 53 m² avait tout pour plaire : une belle luminosité, une jolie hauteur sous plafond, et le calme d’une rue piétonne du centre de Montpellier.
Encore fallait-il révéler ce potentiel.
Lorsque sa propriétaire, une jeune femme de 22 ans, a contacté LMAID en 2022, elle avait une vision claire : transformer ce logement vétuste en un cocon à son image, confortable et contemporain.
Une belle aventure de dix mois allait commencer.
Avant travaux : un espace sans cohérence
La cuisine se limitait à un évier et un carrelage mural daté.
La salle de bains, équipée d’une baignoire et d’un lavabo sur pied, manquait de confort et de modernité.
Les pièces s’enchaînaient sans véritable logique.
Le chauffage gaz était obsolète, l’électricité non conforme, l’isolation quasi inexistante — un vrai sujet sous les toits montpelliérains.
Pourtant, en poussant la porte, on percevait immédiatement l’atout majeur du lieu : cette lumière généreuse qui inondait les pièces à travers les fenêtres d’origine, et cette hauteur sous plafond qui promettait de belles possibilités d’aménagement.
La mission confiée à LMAID
La jeune propriétaire de cet appartement avait des exigences précises pour sa rénovation intérieure. Elle souhaitait supprimer l’alimentation gaz et moderniser le système de chauffage, améliorer significativement l’isolation thermique de l’appartement, mettre l’installation électrique aux normes, créer une véritable entrée et repenser la distribution des espaces, refaire entièrement la salle de bains et les toilettes, concevoir une cuisine fonctionnelle ouverte sur le séjour, et enfin, poser un parquet pour apporter chaleur et élégance à l’ensemble.
LMAID a réalisé une mission complète d’architecture d’intérieur, de l’étude de conception jusqu’au suivi de chantier, en passant par la sélection et l’engagement des entreprises.
Pendant les travaux : un curage complet
Pour donner vie à ce projet, il a fallu repartir de zéro. L’appartement a été entièrement curé : démolition des cloisons existantes, suppression de la cheminée qui occupait le centre de ce qui allait devenir le salon-salle à manger. Les travaux ont également révélé l’état des combles, qu’il a fallu isoler soigneusement pour garantir le confort thermique recherché.
Le parti pris de LMAID : tout repenser & sublimer
Face à cet espace libéré, LMAID a proposé une redistribution complète de l’appartement. Objectif : créer un lieu à la fois fonctionnel, agréable à vivre, chic et reposant.
Une redistribution complète, pensée pour le quotidien
L’appartement a été entièrement curé. Cloisons déposées, cheminée supprimée, réseaux repris.
L’objectif n’était pas seulement d’embellir, mais de restructurer intelligemment.
La chambre a été repositionnée côté cour, au calme.
Les toilettes sont devenues indépendantes.
Une véritable entrée a été créée.
La cuisine s’ouvre désormais sur le séjour et fait face aux fenêtres pour profiter pleinement de la lumière naturelle.
Une salle d'eau graphique et lumineuse
La salle de bains a été entièrement repensée pour devenir une salle d’eau contemporaine. Le carrelage mural blanc à joints noirs, la robinetterie noir mat et la paroi de douche à structure métallique créent une atmosphère graphique et chic. Au sol, une mosaïque de pastilles blanches apporte de la douceur et se marie parfaitement avec le parquet de la chambre attenante, visible à travers la porte vitrée.
Des rangements pensés dans chaque pièce
Conscients de l’importance du rangement dans un appartement de cette surface, LMAID a intégré des solutions sur mesure dans chacune des pièces. Une bibliothèque encastrée en lieu et place de l’ancienne entrée, des placards optimisés et des coffres utilisant l’espace perdu sous l’estrade de la chambre.
Un confort thermique retrouvé
L’isolation des murs et des combles a constitué une étape cruciale de cette rénovation. Situé au dernier étage, l’appartement subissait de fortes variations de température particulièrement en été. L’installation d’un système de climatisation réversible est venue compléter ce dispositif, permettant de maintenir une température agréable été comme hiver — un critère essentiel dans le climat méditerranéen de Montpellier.
Le charme de l’ancien, revisité avec simplicité
Pour sublimer cet espace rénové, LMAID a proposé des matériaux et des finitions soignés.
Le bleu profond des façades de cuisine apporte du caractère, tandis que l’îlot clair équilibre l’ensemble avec douceur.
Les corniches et plinthes Orac Décor ajoutent une touche d’élégance à la pièce de vie principale en lien avec le caractère ancien de l’immeuble.
Le parquet Kahrs Life, dans une teinte claire et douce, unifie l’ensemble des espaces et apporte le côté chaleureux recherché.
La porte vitrée style atelier qui sépare la chambre de la salle d’eau laisse filtrer la clarté naturelle tout en préservant l’intimité nécessaire.
Dans les toilettes, un lé de papier peint aux motifs de visages dessinés apporte une touche d’originalité et de personnalité à ce petit espace.
Rien d’ostentatoire.
Chaque choix a été fait pour durer.
Une métamorphose complète
Au terme du chantier, seules les fenêtres d’origine et la hauteur sous plafond ont été conservées.
Tout le reste a été repensé.
Aujourd’hui, cet appartement offre à sa propriétaire un cadre de vie lumineux, fonctionnel et apaisant. Un lieu à son image : jeune, affirmé, mais élégant
F.A.Q
Non, LMAID intervient dans tout l’Hérault : Pézenas, Clermont-l’Hérault, Lodève, Gignac, Bédarieux et la vallée du Cœur d’Hérault.
Vous avez un projet de rénovation d'appartement dans l'Hérault ?
Que vous soyez à Montpellier, Clermont-l’Hérault, Lodève, Gignac ou dans la vallée du Cœur d’Hérault, LMAID vous accompagne de la conception à la réalisation.
Contactez-nous pour échanger sur votre projet.








