À Montpeyroux, au cœur de l’Hérault, cette maison de village de 277 m² sur trois niveaux attendait patiemment de pouvoir être habitée à nouveau.
Ses propriétaires, un couple d’expatriés préparant leur retour en France pour leur retraite, souhaitaient un lieu chaleureux, confortable et capable d’accueillir enfants et petits-enfants.
Une maison vivante. Une maison de famille.
Le potentiel était là.
Il s’agissait simplement d’accompagner ses futurs occupants dans leur projet de rénovation.
Une mission de rénovation complète
À l’été 2022, LMAID signe une première mission ciblée d’architecture d’intérieur et de maîtrise d’œuvre pour la cuisine, les salles de bain et la suite parentale.
Quelques mois plus tard, suite au désistement de l’architecte en charge du projet, les propriétaires se tournent vers LMAID pour reprendre l’intégralité du projet
À ce stade, seuls des travaux de gros œuvre et de reprise en sous-œuvre avaient été engagés.
Il a fallu :
- réévaluer l’existant,
- sécuriser les choix techniques,
- engager la quinzaine de corps d’état à même de réaliser les travaux
- et reprendre la maîtrise d’œuvre des 277 m².
Une responsabilité importante, dans un contexte de rénovation de bâti ancien, où aucune intervention n’est anodine : ouvrir un mur, reprendre un plancher ou modifier les réseaux demandent de la vigilance afin de ne pas dénaturer le bâtiment et pour ne pas le fragiliser.
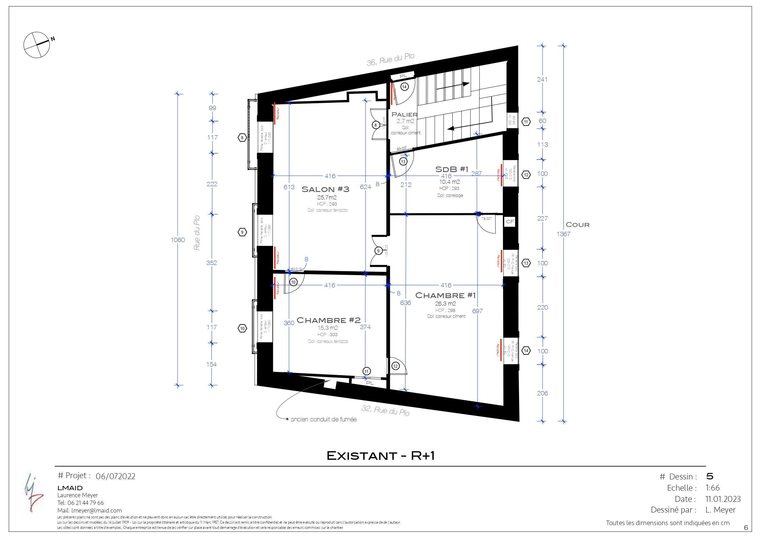
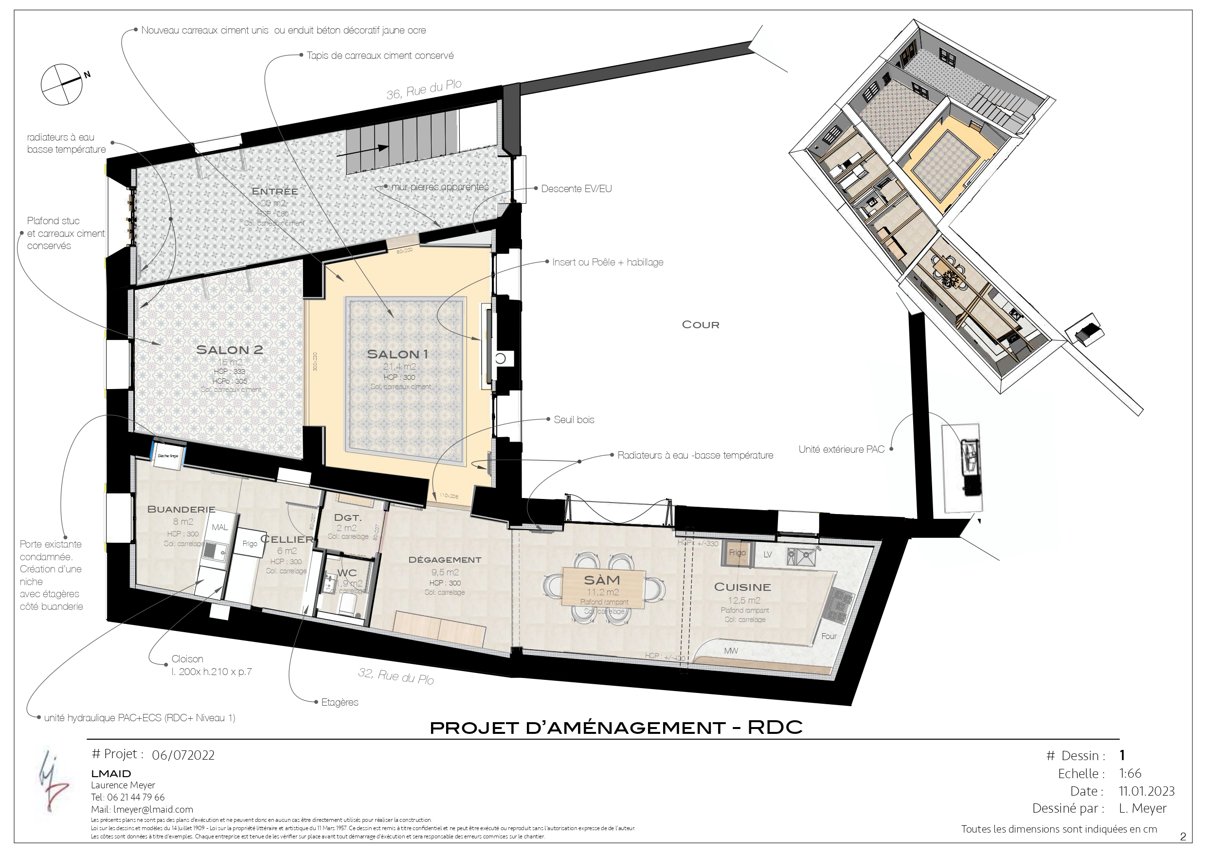
RDC
ETAGE 1
ETAGE 2
Une transformation en profondeur
Sur 12 mois de travaux, la maison a été entièrement curée et repensée :
- renforcement et réfection complète des planchers
- création des réseaux d’eau (ECS) et évacuations EU/EV
- reprise totale de l’installation électrique
- cloisonnements des espaces et rénovation des plafonds
- remplacement des menuiseries extérieures
- restauration des menuiseries intérieures existantes
- restauration des sols en carreaux ciment
- création d’une cuisine et de deux salles de bain
- aménagement complet du second étage
- pose de parquet et de carrelage
- installation d’un poêle Stüv
Une cuisine campagne chic, simple et chaleureuse
L’espace dédié à la cuisine était contraint.
Il a fallu optimiser chaque centimètre.
Le parti-pris : une atmosphère campagne chic, sobre et naturelle.
- placage chêne
- crédence esprit zellige
- plan de travail en Dekton
- poignées coquilles en bronze vieilli
- structure en béton ciré intégrant les meubles
Un ensemble harmonieux, à la fois fonctionnel et chaleureux.
Une cuisine à taille humaine, pensée pour les repas en famille.
Une salle de bain authentique et éclectique
Au-delà de la rénovation des murs et plafonds et du remplacement des fenêtres, on notera la rénovation du tapis de carreaux de ciment existant et l’installation d’un poêle Stüv — toujours aussi élégant.
Les carreaux de ciment d’origine, aux motifs géométriques dans des tons bordeaux, ocre et gris, ont été conservés et restaurés. Ils apportent une touche d’authenticité à cet espace de vie.
Un salon à la fois authentique et éclectique
Éclectique ? Aux accents ethniques ? Avec malgré tout un petit côté vintage ? Difficile de définir le style de cette salle de bain, mais le résultat de cette combinaison est plaisant et l’atmosphère qu’elle dégage plutôt cosy.
Ce mélange d’influences crée un espace enveloppant et singulier où les matières et les couleurs s’accordent avec justesse.
Une vraie maison de famille
Aujourd’hui, cette maison de village à Montpeyroux totalise 277 m² habitables rénovés dans le respect du bâti ancien.
Elle offre :
- des volumes restructurés,
- une isolation performante,
- une installation électrique aux normes,
- un chauffage efficace,
- des espaces pensés pour durer.
Une maison de famille, prête à accueillir ceux qu’elle aime.
F.A.Q
Pour une maison de 277 m² sur trois niveaux, comptez environ 12 mois de travaux.
Oui. LMAID privilégie la préservation des matériaux existants, surtout lorsqu’ils peuvent donner du caractère à l’espace retravaillé : carreaux de ciment, menuiseries anciennes, pierre de taille, … peuvent être restaurés.
LMAID intervient dans la vallée du Cœur d’Hérault (Montpeyroux, Clermont-l’Hérault, Lodève, Gignac) et plus largement dans l’Hérault.
Vous avez un projet de transformation ou d’aménagement dans l’Hérault ?
LMAID vous accompagne de l’étude de faisabilité à la réalisation complète de votre projet. Contactez-nous pour échanger sur vos ambitions et donner une nouvelle lecture à vos espaces.


























