Construite en 2022 et pensée dès l’origine pour la location saisonnière haut de gamme, la Villa Zéphyr devait trouver son “vrai” intérieur : un agencement fluide, une identité forte, et surtout une atmosphère capable de séduire dès les premières minutes… sans tomber dans l’ostentatoire.
Sollicitée en 2023, LMAID a repensé l’aménagement intérieur, dessiné les cuisines et les salles d’eau, puis orchestré les choix de matériaux, d’équipements et de mobilier.
Le résultat : un intérieur lumineux et équilibré, à la fois chic et décontracté, baigné d’une atmosphère apaisante.
Un héritage architectural à honorer
La Villa Zephyr se dresse à proximité d’une demeure classée monument historique : la villa du Vent d’Aval, œuvre des architectes Pierre Chareau et Bernard Bijvoet, construite dans les années 1930. Cette proximité imposait une réflexion approfondie sur l’identité de la nouvelle construction, qui devait s’harmoniser avec son environnement tout en affirmant une personnalité contemporaine.
L’architecture de la villa adopte ainsi une écriture résolument contemporaine, inspirée des codes du modernisme et du cubisme. Les volumes francs, les lignes épurées et les grandes ouvertures vitrées constituent la toile de fond sur laquelle LMAID a travaillé.
Une villa neuve… à écrire
L’enjeu n’était pas de “rénover” une maison ancienne, mais d’inventer une ambiance à la hauteur de l’architecture :
- rendre les espaces immédiatement lisibles (arriver, circuler, vivre, se reposer)
- créer une cohérence globale entre les pièces
- soigner la durabilité (matériaux, équipements) pour un usage intensif en location
Des volumes présents, une identité à construire
Même lorsqu’une villa est neuve, “l’avant” existe : une base propre, mais souvent neutre, où tout reste à définir. Ici, l’enjeu portait sur :
- une grande pièce de vie ouverte, à structurer sans cloisonner
- des chambres à personnaliser pour être mémorables, sans perdre en sobriété
- plusieurs salles d’eau à concevoir sur un même socle qualitatif, tout en différenciant les ambiances
La mission de LMAID : de l’agencement au dernier détail
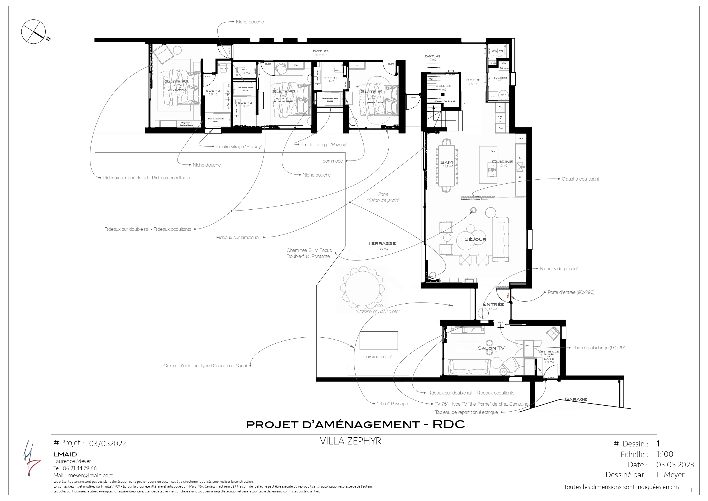
Optimiser l’implantation
LMAID a d’abord travaillé l’agencement : cuisines (intérieure et d’été), salles d’eau, circulations, et points de confort (rangements, implantation des équipements).
Dessiner, sélectionner, harmoniser
Deux lignes directrices ont structuré l’ensemble :
- un esprit moderniste (années 30–40) : lignes simples, fonctionnalité, justesse des proportions.
- un mélange “ancien / nouveau” : des références intemporelles, réinterprétées avec une écriture contemporaine
La palette privilégie :
- un bleu profond (structurant, sophistiqué)
- le chêne clair (chaleur, douceur)
- une base minérale (terrazzo) qui capte la lumière sans l’écraser
Un modernisme chaleureux, des matières naturelles et couleurs contrastées
La mission s’est ensuite élargie à :
- la sélection des matériaux (notamment chêne naturel et terrazzo)
- les équipements (cheminée, luminaires, sanitaires, audiovisuel)
- le mobilier et les pièces sur mesure, afin d’obtenir un intérieur à la fois élégant et facile à vivre
Une cuisine chic et conviviale, pensée pour recevoir
Dans une villa de vacances, la cuisine est un véritable lieu de vie. Ici, elle s’ouvre sur la salle à manger et le séjour, avec une implantation conçue pour :
- multiplier les plans de travail
- favoriser les échanges (îlot central)
- garder une lecture claire des volumes
Le bleu marine apporte de la profondeur et de l’élégance, tandis que le chêne clair réchauffe l’ensemble. Le terrazzo, lui, assure une continuité minérale très “Sud” : lumineuse, stable, facile à vivre.
Un claustra coulissant pour moduler les usages
Pour structurer sans fermer, LMAID a imaginé pour la pièce de vie principale un claustra coulissant. Il permet :
- de filtrer les vues
- de “composer” l’espace selon les moments
et de profiter de la présence de la cheminée, tout en conservant
Dessiner une atmosphère, du matin au soir
La lumière naturelle fait déjà beaucoup, mais l’éclairage donne la tonalité. La sélection mêle pièces contemporaines et signatures design, avec une intention claire : apporter du confort visuel et de la douceur, sans surcharger.
Dans la salle à manger, une suspension en fibres naturelles, ondulée et aérienne, ajoute une note chaleureuse et un peu sculpturale — idéale pour une maison de vacances haut de gamme: simple, mais marquante.
Dans les chambres, les petites suspensions se déclinent en différentes finitions – marbre, laiton, céramique – apportant une touche précieuse à chaque espace nuit.
Des chambres ouvertes sur le jardin
Chaque chambre de la villa Zéphyr a été pensée comme un refuge lumineux, largement ouvert sur le jardin. Les lignes restent simples, les matières naturelles, et les teintes profondes structurent les volumes tout en douceur.
L’ensemble crée une atmosphère calme et confortable. Il en résulte des espaces élégants et accueillants, en accord avec l’exigence d’une location saisonnière haut de gamme
Cinq salles d’eau : une base commune, des ambiances personnalisées
Pour garantir une cohérence d’ensemble (et une maintenance facilitée en location), les salles d’eau partagent :
- une trame de sanitaires
- une logique de matériaux
- une même exigence de finition
Mais chacune possède sa propre variation chromatique, pour créer des repères et une personnalité.
Le confort… sans sèche-serviettes apparent
Un sèche-serviettes peut vite “casser” une ligne épurée. Ici, le confort a été assuré par un mur chauffant discret, intégré au décor, afin de préserver l’esthétique tout en répondant aux usages.
Mobilier : des lignes épurées, un équilibre entre énergie et sérénité
Le mobilier associe des pièces sélectionnées auprès de maisons reconnues et des éléments dessinés sur mesure par LMAID.
Ce choix permet de préserver une atmosphère apaisée, d’éviter l’effet « décor témoin » et de composer un intérieur pensé pour durer, saison après saison.
Les pièces proviennent notamment de Pianca, Ethnicraft, Meridiani, Riflessi, TON, Ligne Pure, New Works, Carl Hansen & Son, Bolia, Joquer ou Alta Corte.
Courbes et lignes épurées se répondent avec justesse, apportant à l’ensemble une présence à la fois structurée et douce.
L’extérieur : prolonger l’expérience, sans rivaliser avec le paysage
L’espace extérieur prolonge naturellement la villa : matériaux bruts et naturels, lignes rondes et épurées, et une cuisine d’été conçue pour se fondre dans l’architecture. Noire, elle se fait discrète et parfaitement adaptée aux repas d’été, à l’ombre.
Concevoir une destination, pas seulement un intérieur
Avec la Villa Zéphyr, l’enjeu n’était pas simplement d’aménager une maison contemporaine, mais de créer une destination désirable, capable de séduire une clientèle exigeante dès les premières images.
Agencement fluide, matériaux durables, palette maîtrisée, confort discret… un équilibre entre esthétique, usage et pérennité, indispensable en location saisonnière haut de gamme.
LMAID accompagne également les propriétaires de mas familiaux, bastides, gîtes ou projets de boutique-hôtels souhaitant transformer un lieu en véritable expérience d’hospitalité.
Que le projet soit contemporain ou ancré dans le bâti ancien, l’objectif reste le même : révéler le potentiel du lieu, structurer les espaces et créer une atmosphère cohérente, élégante et sincère.
F.A.Q
La Villa Zephyr adopte un style moderniste contemporain inspiré des années 1930-40, mêlant lignes épurées, matériaux nobles comme le chêne et le terrazzo, et une palette de couleurs contrastées (bleu marine, terracotta, tons naturels).
Le mobilier provient de marques de référence : Pianca, Ethnicraft, Meridiani, Carl Hansen & Son, Bolia, New Works, TON, Foscarini et Vibia pour les luminaires.
LMAID sélectionne avec soin ses fournisseurs et les artisans avec lesquels elle travaille, en accordant une grande importance à la qualité, la durabilité et au design des ouvrages réalisés ou proposés.
LMAID a opté pour des murs chauffants discrets, de la marque Schlüter-Systems parfaitement intégrés au décor, préservant l’esthétique épurée tout en assurant un confort thermique optimal.
Vous envisagez la rénovation d’un mas, la transformation d’un gîte ou l’aménagement d’une résidence destinée à la location saisonnière ?
LMAID vous accompagne de la conception à la sélection du mobilier, avec une approche sur mesure, exigeante et naturelle.
Contactez LMAID pour échanger sur votre projet





















